nicht erforderlich
Traumhafter Altbau mit viel Charme direkt am Zentrum Leipzigs.
Das Objekt verfügt über einen 2022 neu eingebauten, modernen Aufzug.
Der Eingangsbereich wurde gerade renoviert und erstrahlt in neuem Glanz.
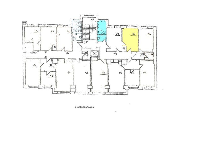
Die Gewerbefläche verfügt über einen Büroraum (R3).
Küche, WC und Flur teilt man sich mit den Büromietern der Etagenhälfte.
Die Nutzfläche besteht aus ca. 19,54 m² Büroraum und einem Anteil an der Allgemeinfläche mit ca. 6,08 m², somit gesamt ca. 25,62 m².
(Mietpreis zzgl. Mwst.)
Für weitere Informationen, sowie für einen Besichtigungstermin steht Ihnen Herr Heinemann unter 0341/3900615 gern zur Verfügung.
Weitere interessante Angebote finden Sie unter WWW.HILDEBRAND-PARTNER.COM
DAS VORSTEHENDE ANGEBOT IST FREIBLEIBEND UND DIE ZWISCHENZEITLICHE VERMIETUNG SOWIE ÄNDERUNGEN UND IRRTÜMER BLEIBEN VORBEHALTEN! ETWAIGE EINZEICHNUNGEN IN DEN GRUNDRISSPLÄNEN (KÜCHEN, WASCHMASCHINE, MÖBEL ETC.), SIND LEDIGLICH EINRICHTUNGSVORSCHLÄGE UND SIND NICHT MIETVERTRAGSBESTANDTEIL.
Es handelt sich um einen denkmalgeschützten Altbau, ein Energieausweis ist nicht erforderlich !
Anmerkung: Die von uns gemachten Angaben haben wir nach bestem Wissen und Gewissen nach Informationen des Vermieters/Verkäufers und den uns übergebenen Informationen zusammengestellt. Eine Gewähr für diese Angaben können wir nicht übernehmen. Wichtige Zahlen und Informationen sind am Objekt zu überprüfen. Zwischenvermietung/Verkauf bleibt vorbehalten.
Das Objekt befindet sich in erstklassiger Lage im Zentrum Leipzigs und verfügt über optimale Anbindung an den öffentlichen Nahverkehr.