Hochwertig sanierte 4-Zimmer-Maisonettewohnung 2 Terrassen! – Hildebrand und Partner Hochwertig sanierte 4-Zimmer-Maisonettewohnung 2 Terrassen! – Hildebrand und Partner

Hochwertig sanierte 4-Zimmer-Maisonettewohnung 2 Terrassen!

04318 Leipzig, Maisonettewohnung zur Miete

Kontaktdaten

Objektdaten

  • Objekt ID
    Wurzn143_WE17
  • Objekttypen
    Maisonettewohnung, Wohnung
  • Adresse
    Wurzner Straße 143d
    04318 Leipzig
  • Etage
    EG
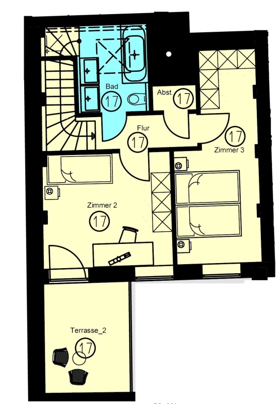
  • Wohnfläche ca.
    115,21 m²
  • Zimmer
    4
  • Badezimmer
    2
  • Terrassen
    2
  • Heizungsart
    Fußbodenheizung
  • Letzte Modernisierung
    2018
  • Zustand
    vollsaniert
  • Verfügbar ab
    01.07.2026
  • Kaution
    2.896,00 EUR
  • Kaltmiete
    1.448,00 EUR
  • Nebenkosten
    280,00 EUR
  • Warmmiete
    1.728,00 EUR (Heizkosten enthalten)

Ausstattung / Merkmale

  • Abstellraum
  • Altbau
  • Badewanne
  • Dusche
  • Gäste-WC
  • Offene Küche
  • Parkettboden
  • Tageslichtbad
  • Terrasse

Objekt­beschreibung

Beschreibung

Die unter denkmalschutz stehenden Vordergebäude und die attraktiven Hofgebäude wurden 1889 für die Firma Weidner & Edlich errichtet. Charakteristisch für den Baustil ist die mit Klinker versehene Fassade der Vorderhäuser mit ihren pointierten Verzierungen. Hervorzuheben sind auch die historischen Treppenhäuser in den Vordergebäuden mit den stilgerechten Wohnungseingangstüren und den aufwändig gearbeiteten Treppengeländern.

Ausstattung

Zur erstklassigen Ausstattung dieser Maisonette-Wohnung (EG+DG) zählen :
- Parkettfußböden in den Wohnräumen
- ein modernes Bad mit Oberlicht, Kristallspiegel, Downlights, Badradio, Badewanne und ebenerdiger Dusche
- ein Gäste-Bad mit Dusche
- ein Abstellraum
- Fußbodenheizung in der kompletten Wohnung
- gespachtelte Wände
- eine Videowechselsprechanlage
- zwei Terrassen

Sonstige Informationen

Weitere interessante Angebote finden Sie unter WWW.HILDEBRAND-PARTNER.COM

DAS VORSTEHENDE ANGEBOT IST FREIBLEIBEND UND DIE ZWISCHENZEITLICHE VERMIETUNG SOWIE ÄNDERUNGEN UND IRRTÜMER BLEIBEN VORBEHALTEN! ETWAIGE EINZEICHNUNGEN IN DEN GRUNDRISSPLÄNEN (KÜCHEN, WASCHMASCHINE, MÖBEL ETC.), SIND LEDIGLICH EINRICHTUNGSVORSCHLÄGE UND SIND NICHT MIETVERTRAGSBESTANDTEIL.

Es handelt sich um einen denkmalgeschützten Altbau, ein Energieausweis ist nicht erforderlich !

Lage

Der aufstrebende Stadtteil Sellerhausen ist von repräsentativen Häusern im gründerzeitstil und Einfamilienhäusern geprägt. Über die Torgauer Straße besteht eine schnelle Anbindung an die A 14. In das Zentrum gelangt man genauso zügig über Wurzner oder Dresdener Straße, wie über den naheliegenden S-Bahnhof Sellerhausen. Der 'bunte' und vielseitige Ortsteil punktet darüber hinaus mit zahlreichen Einkaufs- und Diesntleistungsangeboten. Der nahe gelegende Volkshain Stünz, ein 1000.000 qm großer Landschaftspark, bietet mit idyllischen Spazierwegen, weitläufigen Wiesen und einem Sportplatz Naherholung.

Direktanfrage

 SSL-verschlüsselt
Immobiliendaten-Import und Darstellung für WordPress: WP-ImmoMakler®