Bürofläche im traumhaften Altbau im Zentrum Leipzig ! – Hildebrand und Partner Bürofläche im traumhaften Altbau im Zentrum Leipzig ! – Hildebrand und Partner

Bürofläche im traumhaften Altbau im Zentrum Leipzig !

04109 Leipzig, Bürohaus zur Miete

Kontaktdaten

Objektdaten

  • Objekt ID
    141576-G-Gott4_1.OG re
  • Objekttypen
    Büro/Praxis, Bürohaus
  • Adresse
    Gottschedstraße 4
    04109 Leipzig
  • Etage
    1
  • Bürofläche ca.
    211,14 m²
  • Büroteilfläche ca.
    211,14 m²
  • Teilbar ab
    211,14 m²
  • Zimmer
    6
  • Separate WC
    2
  • Zustand
    vollsaniert
  • Verfügbar ab
    01.01.2026
  • Mieter­provision (gewerblich)
    Dieses Angebot ist provisionsfrei für den Mieter.
  • Kaution
    8.244,00 EUR
  • Kaltmiete
    2.748,00 EUR
  • Nebenkosten
    600,00 EUR
  • Warmmiete
    3.348,00 EUR (Heizkosten enthalten)

Ausstattung / Merkmale

  • Altbau
  • Linoleumboden
  • Parkettboden
  • Personenaufzug
  • Separates WC

Objekt­beschreibung

Beschreibung

Dieser markante, wunderschöne Altbau befindet sich in der Gottschedstraße.
Über das herrschaftliche Treppenhaus mit Aufzug gelangt man zu der Bürofläche im 1. Obergeschoß.

Ausstattung

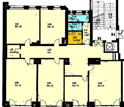
Diese Bürofläche verfügt über 6 Büroräume, einen Küchen-Bereich und zwei WC-Bereiche. Die optimal nutzbaren Bürozimmer verfügen straßenseitig über einen wunderschönen freien Blick. Der Flur hat einen Parkettboden, die Küche und WC´s haben einen Fliesenbelag und die Zimmer über Vinylboden in Holzoptik.
Herrschaftliche Zimmertüren, angenehme Raumhöhe, große Fenster und eine zentrale Lage sind nur einige Argumente diese Fläche zu mieten.

Sonstige Informationen

Ein Energieausweis ist nicht erforderlich. Die Immobilie steht unter Denkmalschutz.

Weitere interessante Angebote finden Sie unter WWW.HILDEBRAND-PARTNER.COM
DAS VORSTEHENDE ANGEBOT IST FREIBLEIBEND UND DIE ZWISCHENZEITLICHE VERMIETUNG SOWIE ÄNDERUNGEN UND IRRTÜMER BLEIBEN VORBEHALTEN!
ETWAIGE EINZEICHNUNGEN IN DEN GRUNDRISSPLÄNEN (KÜCHEN, WASCHMASCHINE, MÖBEL ETC.), SIND LEDIGLICH EINRICHTUNGSVORSCHLÄGE UND SIND NICHT MIETVERTRAGSBESTANDTEIL.

Anmerkung: Die von uns gemachten Angaben haben wir nach bestem Wissen und Gewissen nach Informationen des Vermieters/Verkäufers und den uns übergebenen Informationen zusammengestellt. Eine Gewähr für diese Angaben können wir nicht übernehmen. Wichtige Zahlen und Informationen sind am Objekt zu überprüfen. Zwischenvermietung/Verkauf bleibt vorbehalten.

Lage

Erstklassige Lage in Leipzig.
Zentrum-West ist eines der beliebtesten Stadtviertel Leipzigs und begeistert durch seine Nähe zur Innenstadt, zum Clara-Zentkin-Park und den vielen Bars und Restaurants. In nur wenigen Gehminuten erreicht man den öffentlichen Nahverkehr, Zugang zum Fernverkehr, Geschäfte des täglichen Bedarfs, Kindergärten, Schulen ...

Direktanfrage

 SSL-verschlüsselt
Immobiliendaten-Import und Darstellung für WordPress: WP-ImmoMakler®