Kleine Bürofläche am Dittrichring im Zentrum Leipzigs ! – Hildebrand und Partner Kleine Bürofläche am Dittrichring im Zentrum Leipzigs ! – Hildebrand und Partner

Kleine Bürofläche am Dittrichring im Zentrum Leipzigs !

04109 Leipzig, Bürohaus zur Miete

Kontaktdaten

Objektdaten

  • Objekt ID
    D15_2.OGR 8
  • Objekttypen
    Büro/Praxis, Bürohaus
  • Adresse
    Dittrichring 15
    04109 Leipzig
  • Etage
    2
  • Bürofläche ca.
    26,21 m²
  • Büroteilfläche ca.
    26,21 m²
  • Teilbar ab
    26,21 m²
  • Zimmer
    1
  • Verfügbar ab
    sofort
  • Mieter­provision (gewerblich)
    Dieses Angebot ist provisionsfrei für den Mieter.
  • Kaution
    894,00 EUR
  • Kaltmiete
    298,00 EUR
  • Nebenkosten
    80,00 EUR
  • Warmmiete
    378,00 EUR (Heizkosten enthalten)

Ausstattung / Merkmale

  • Laminatboden

Energieausweis

  • Energieausweistyp
    Verbrauchs­ausweis
  • Ausstellungsdatum
    ab dem 1.5.2014
  • Gültig bis
    01.12.2030
  • Gebäudeart
    Nichtwohngebäude
  • Endenergie­verbrauch Wärme
    132,00 kWh/(m²·a)
  • Warmwasser enthalten
    ja
0 25 50 75 100 125 150 175 200 225 250+ H G F E D C B A A+ H G F E D C B A A+ Endenergieverbrauch Wärme 132,00 kWh/(m²·a)

Objekt­beschreibung

Beschreibung

Das Objekt befindet sich in erstklassiger Lage im Zentrum Leipzigs und verfügt über optimale Anbindung an den öffentlichen Nahverkehr und einen Aufzug.

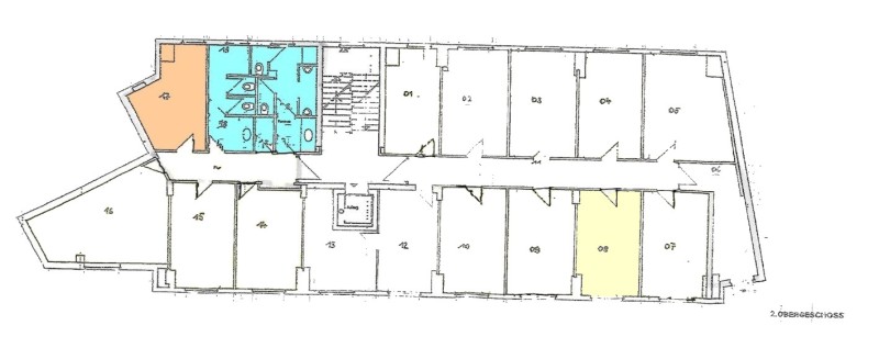
Die Bürofläche besteht aus einem Zimmer mit Laminat-Boden. Die Küche, WC und Flur teilt man sich mit den Büromietern dieser Etage.

Der Büroraum ist ca. 19,66 m² groß, dazu gehören ein Anteil an der Allgemeinfläche von ca. 6,55 m² , somit gesamt ca. 26,21 m².

(Mietpreis zzgl. Mwst.)

Sonstige Informationen

Weitere interessante Angebote finden Sie unter WWW.HILDEBRAND-PARTNER.COM
DAS VORSTEHENDE ANGEBOT IST FREIBLEIBEND UND DIE ZWISCHENZEITLICHE VERMIETUNG SOWIE ÄNDERUNGEN UND IRRTÜMER BLEIBEN VORBEHALTEN!
ETWAIGE EINZEICHNUNGEN IN DEN GRUNDRISSPLÄNEN (KÜCHEN, WASCHMASCHINE, MÖBEL ETC.), SIND LEDIGLICH EINRICHTUNGSVORSCHLÄGE UND SIND NICHT MIETVERTRAGSBESTANDTEIL.

Anmerkung: Die von uns gemachten Angaben haben wir nach bestem Wissen und Gewissen nach Informationen des Vermieters/Verkäufers und den uns übergebenen Informationen zusammengestellt. Eine Gewähr für diese Angaben können wir nicht übernehmen. Wichtige Zahlen und Informationen sind am Objekt zu überprüfen. Zwischenvermietung/Verkauf bleibt vorbehalten.

Lage

Das Objekt befindet sich in erstklassiger Lage im Zentrum Leipzigs und verfügt über optimale Anbindung an den öffentlichen Nahverkehr.

Direktanfrage

 SSL-verschlüsselt
Immobiliendaten-Import und Darstellung für WordPress: WP-ImmoMakler®