Büro am Dittrichring im Leipziger Zentrum zu vermieten ! – Hildebrand und Partner Büro am Dittrichring im Leipziger Zentrum zu vermieten ! – Hildebrand und Partner

Büro am Dittrichring im Leipziger Zentrum zu vermieten !

04109 Leipzig, Bürohaus zur Miete

Kontaktdaten

Objektdaten

  • Objekt ID
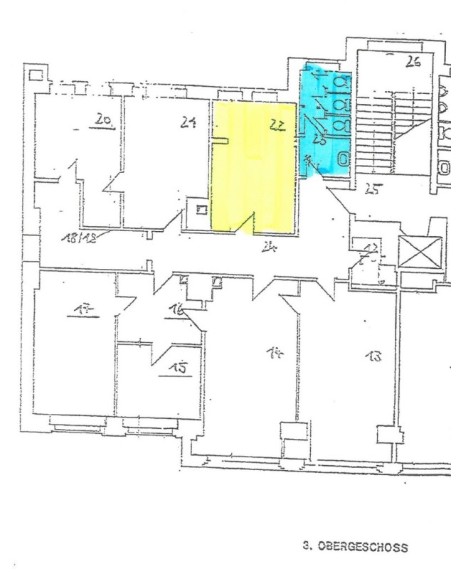
    D17, 3 OG, R22
  • Objekttypen
    Büro/Praxis, Bürohaus
  • Adresse
    Dittrichring 17
    04109 Leipzig
  • Etage
    3
  • Bürofläche ca.
    26,79 m²
  • Büroteilfläche ca.
    26,79 m²
  • Teilbar ab
    26,79 m²
  • Zimmer
    1
  • Separate WC
    3
  • Heizungsart
    Zentralheizung
  • Zustand
    teil-/vollrenoviert
  • Verfügbar ab
    sofort
  • Mieter­provision (gewerblich)
    Dieses Angebot ist provisionsfrei für den Mieter.
  • Kaution
    1.044,00 EUR
  • Kaltmiete
    348,00 EUR
  • Nebenkosten
    75,00 EUR
  • Warmmiete
    423,00 EUR (Heizkosten enthalten)

Ausstattung / Merkmale

  • Personenaufzug
  • Separates WC
  • Teeküche

Energieausweis

nicht erforderlich

Objekt­beschreibung

Beschreibung

Traumhafter Altbau mit viel Charme direkt am Zentrum Leipzigs.
Das Objekt verfügt über einen 2022 neu eingebauten, modernen Aufzug.
Der Eingangsbereich wurde gerade renoviert und erstrahlt in neuem Glanz.

Ausstattung

Die Gewerbefläche verfügt über einen Büroräume (R 22).
Küche, WC und Flur teilt man sich mit den Büromietern der Etagenhälfte.

Der Allgemeinbereich Flur/Küche verfügt über einen neuen Vinylbelag. Die Wände sind gespachtelt und weiß gestrichen.

Die Büroraum ist ebenfalls mit einem neuen Vinylbelag in Holzoptik ausgestattet.

Die Nutzfläche besteht aus ca. 22,27 m² Büroraum und einem Anteil an der Allgemeinfläche mit ca. 4,52 m², somit gesamt ca. 26,79 m².

(Mietpreis zzgl. Mwst.)

Für weitere Informationen, sowie für einen Besichtigungstermin steht Ihnen Herr Heinemann unter 0341/3900615 gern zur Verfügung.

Sonstige Informationen

Weitere interessante Angebote finden Sie unter WWW.HILDEBRAND-PARTNER.COM

DAS VORSTEHENDE ANGEBOT IST FREIBLEIBEND UND DIE ZWISCHENZEITLICHE VERMIETUNG SOWIE ÄNDERUNGEN UND IRRTÜMER BLEIBEN VORBEHALTEN! ETWAIGE EINZEICHNUNGEN IN DEN GRUNDRISSPLÄNEN (KÜCHEN, WASCHMASCHINE, MÖBEL ETC.), SIND LEDIGLICH EINRICHTUNGSVORSCHLÄGE UND SIND NICHT MIETVERTRAGSBESTANDTEIL.

Es handelt sich um einen denkmalgeschützten Altbau, ein Energieausweis ist nicht erforderlich !

Anmerkung: Die von uns gemachten Angaben haben wir nach bestem Wissen und Gewissen nach Informationen des Vermieters/Verkäufers und den uns übergebenen Informationen zusammengestellt. Eine Gewähr für diese Angaben können wir nicht übernehmen. Wichtige Zahlen und Informationen sind am Objekt zu überprüfen. Zwischenvermietung/Verkauf bleibt vorbehalten.

Lage

Das Objekt befindet sich in erstklassiger Lage im Zentrum Leipzigs und verfügt über optimale Anbindung an den öffentlichen Nahverkehr.

Direktanfrage

 SSL-verschlüsselt
Immobiliendaten-Import und Darstellung für WordPress: WP-ImmoMakler®