Bürofläche —- ruhigen HOFGEBÄUDE im Zentrum Leipzigs! – Hildebrand und Partner Bürofläche —- ruhigen HOFGEBÄUDE im Zentrum Leipzigs! – Hildebrand und Partner

Bürofläche —- ruhigen HOFGEBÄUDE im Zentrum Leipzigs!

04109 Leipzig, Bürohaus zur Miete

Kontaktdaten

Objektdaten

  • Objekt ID
    Dittrichring15_HH_1.OG
  • Objekttypen
    Büro/Praxis, Bürohaus
  • Adresse
    Dittrichring 15
    04109 Leipzig
  • Etage
    1
  • Bürofläche ca.
    60,30 m²
  • Büroteilfläche ca.
    60,30 m²
  • Teilbar ab
    60,30 m²
  • Zimmer
    1
  • Separate WC
    1
  • Zustand
    vollsaniert
  • Verfügbar ab
    01.07.2026
  • Mieter­provision (gewerblich)
    Dieses Angebot ist provisionsfrei für den Mieter.
  • Kaution
    2.844,00 EUR
  • Kaltmiete
    948,00 EUR
  • Nebenkosten
    200,00 EUR
  • Warmmiete
    1.148,00 EUR (Heizkosten enthalten)

Ausstattung / Merkmale

  • Parkettboden
  • Separates WC

Objekt­beschreibung

Beschreibung

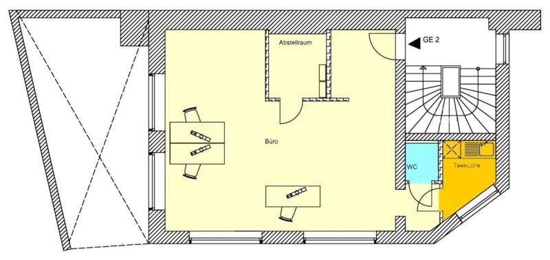
Die Bürofläche befindet sich im sanierten Hofgebäude. Es handelt sich um einen großen Raum, einen Küchen- und WC-Bereich und einen Abstellraum. Die Fläche verfügt über Fußbodenheizung, Parkettfußboden, ausreichend Datenanschlüsse und gespachtelte Wände.

Für weitere Informationen sowie für einen Besichtigungstermin steht Ihnen Herr Heinemann unter 0341/3900615 gern zur Verfügung.

Sonstige Informationen

Weitere interessante Angebote finden Sie unter WWW.HILDEBRAND-PARTNER.COM
DAS VORSTEHENDE ANGEBOT IST FREIBLEIBEND UND DIE ZWISCHENZEITLICHE VERMIETUNG SOWIE ÄNDERUNGEN UND IRRTÜMER BLEIBEN VORBEHALTEN!
ETWAIGE EINZEICHNUNGEN IN DEN GRUNDRISSPLÄNEN (KÜCHEN, WASCHMASCHINE, MÖBEL ETC.), SIND LEDIGLICH EINRICHTUNGSVORSCHLÄGE UND SIND NICHT MIETVERTRAGSBESTANDTEIL.

Anmerkung: Die von uns gemachten Angaben haben wir nach bestem Wissen und Gewissen nach Informationen des Vermieters/Verkäufers und den uns übergebenen Informationen zusammengestellt. Eine Gewähr für diese Angaben können wir nicht übernehmen. Wichtige Zahlen und Informationen sind am Objekt zu überprüfen. Zwischenvermietung/Verkauf bleibt vorbehalten.

Lage

Das Objekt befindet sich in erstklassiger Lage im Zentrum Leipzigs und verfügt über optimale Anbindung an den öffentlichen Nahverkehr.

Direktanfrage

 SSL-verschlüsselt
Immobiliendaten-Import und Darstellung für WordPress: WP-ImmoMakler®