Forsthaus Raschwitz – Gastronomiefläche mit großem Freisitz und Parkplatz! – Hildebrand und Partner Forsthaus Raschwitz – Gastronomiefläche mit großem Freisitz und Parkplatz! – Hildebrand und Partner

Forsthaus Raschwitz – Gastronomiefläche mit großem Freisitz und Parkplatz!

04416 Markkleeberg, Gastronomie zur Miete

Kontaktdaten

Objektdaten

  • Objekt ID
    Koburger33_EG
  • Objekttypen
    Gastgewerbe, Gastronomie
  • Adresse
    Koburger Straße 33
    04416 Markkleeberg
  • Etage
    EG
  • Gesamtfläche ca.
    693,35 m²
  • Gastrofläche ca.
    350 m²
  • Teilbar ab
    350 m²
  • Zimmer
    5
  • Terrassen
    1
  • Zustand
    vollsaniert
  • Verfügbar ab
    sofort
  • Mieter­provision (gewerblich)
    Dieses Angebot ist provisionsfrei für den Mieter.
  • Kaution
    26.994,00 EUR
  • Kaltmiete
    8.998,00 EUR
  • Nebenkosten
    2.000,00 EUR
  • Warmmiete
    10.998,00 EUR (Heizkosten enthalten)

Ausstattung / Merkmale

  • Außenstellplatz
  • Parkettboden
  • Terrasse

Objekt­beschreibung

Beschreibung

Der sanierte historische Altbau ist unter dem Namen "Forsthaus Raschwitz" bekannt.
Die Liegenschaft ist verkehrsgünstig gelegen in unmittelbarer Nähe zum Auewald.

Ausstattung

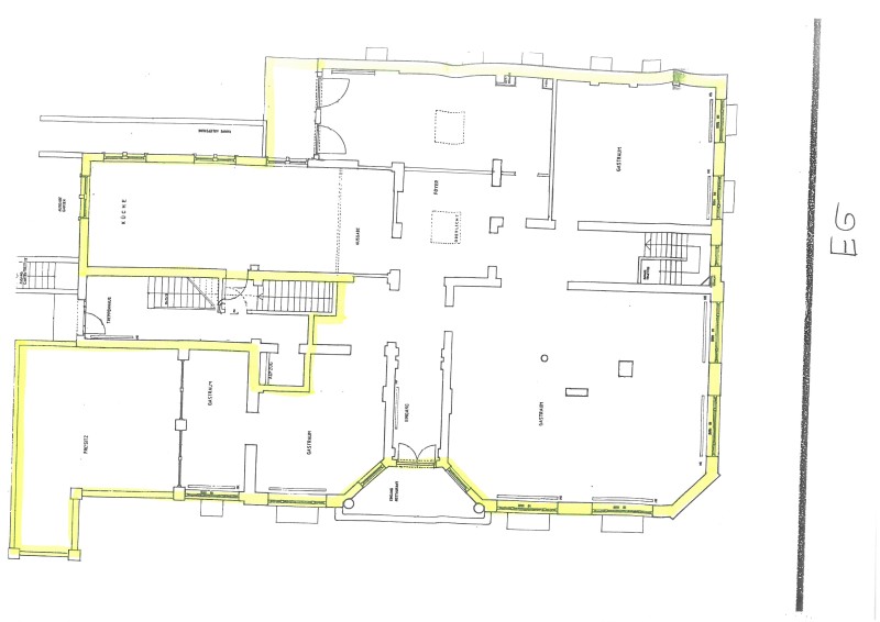
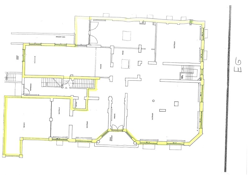
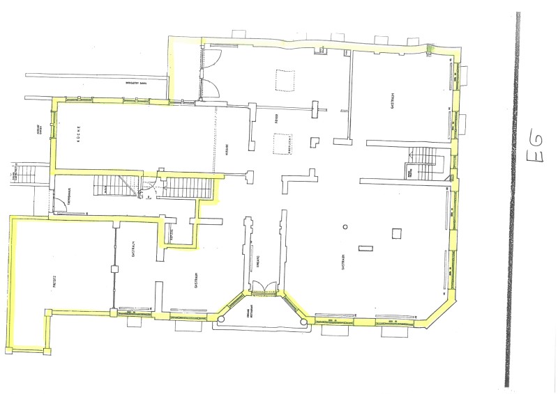
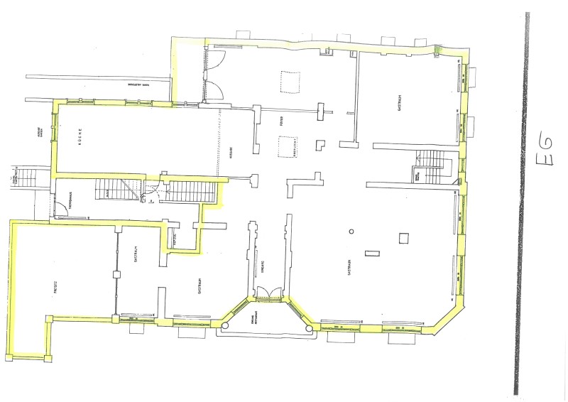
Im Erdgeschoss befinden sich die Gasträume mit ca. 350 m², die Küche mit ca. 60 m² und eine Terrasse ebenfalls mit ca. 60 m²
Die Gasträume sind mit Parkettboden versehen und die Küche verfügt über Fliesenboden.

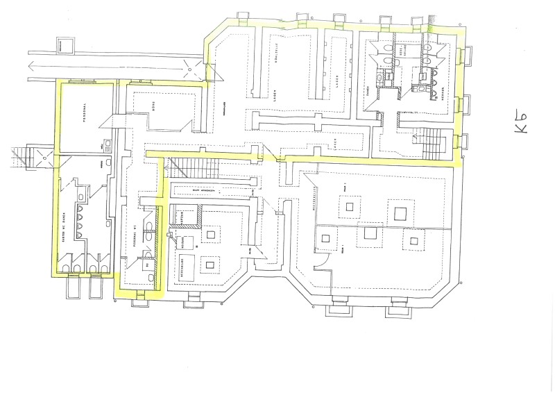
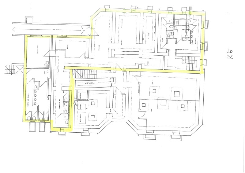
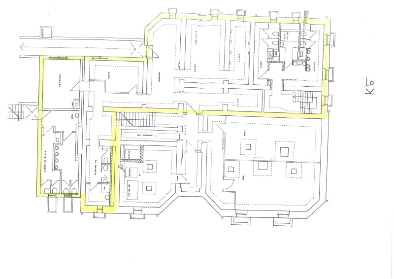
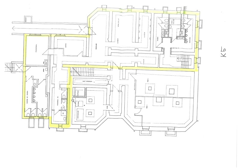
Im Kellergeschoß sind die Gästetoiletten über eine separate Treppe vom EG begehbar.
Weiterhin befinden sich im Kellergeschoß die Lagerräume, ein Büro sowie Personaltoiletten und Umkleidebereiche.

Ein großer Freisitz/Biergarten mit ca. 1200 m² gehört zum Forsthaus Raschwitz. Für die Gäste des Freisitzes sind die WC Bereiche über einen direkten Zugang von außen im Kellergeschoß zu erreichen.

Die Mietfläche verfügt über einen Parkplatz auf dem gegenübeliegenden Grundstück.

Sonstige Informationen

Weitere interessante Angebote finden Sie unter WWW.HILDEBRAND-PARTNER.COM

DAS VORSTEHENDE ANGEBOT IST FREIBLEIBEND UND DIE ZWISCHENZEITLICHE VERMIETUNG SOWIE ÄNDERUNGEN UND IRRTÜMER BLEIBEN VORBEHALTEN! ETWAIGE EINZEICHNUNGEN IN DEN GRUNDRISSPLÄNEN (KÜCHEN, WASCHMASCHINE, MÖBEL ETC.), SIND LEDIGLICH EINRICHTUNGSVORSCHLÄGE UND SIND NICHT MIETVERTRAGSBESTANDTEIL.

Es handelt sich um einen denkmalgeschützten Altbau, ein Energieausweis ist nicht erforderlich !

Lage

Die Gastronomiefläche befindet sich in Markkleeberg vor den Toren Leipzigs.

Das Forsthaus Raschwitz ist ein traditionsreiches Gasthaus mit 127 Jahren Geschichte, das seine Gäste in einem von Geschichte durchdrungenen Ambiente verwöhnt. Gelegen in der malerischen Umgebung nahe Leipzig, verbindet es ländlichen Charme mit Stadtnähe, perfekt für Naturliebhaber und Kulturbegeisterte.

Markkleeberg ist eine Große Kreisstadt am südlichen Rand von Leipzig im sächsischen Landkreis Leipzig, bekannt als Naherholungsziel im Leipziger Neuseenland. Die Stadt grenzt an den Cospudener und den Markkleeberger See und bietet dank seiner ehemaligen Bergbaugeschichte eine vielfältige Landschaft mit Seen, Wäldern und zahlreichen Freizeitangeboten wie dem Kanupark Markkleeberg

Direktanfrage

 SSL-verschlüsselt
Immobiliendaten-Import und Darstellung für WordPress: WP-ImmoMakler®