Hochwertig sanierte Dachgeschoss-Maisonette-Wohnung mit Fubo-Heizung, Terrasse und Balkon! – Hildebrand und Partner Hochwertig sanierte Dachgeschoss-Maisonette-Wohnung mit Fubo-Heizung, Terrasse und Balkon! – Hildebrand und Partner

Hochwertig sanierte Dachgeschoss-Maisonette-Wohnung mit Fubo-Heizung, Terrasse und Balkon!

04318 Leipzig, Dachgeschosswohnung zur Miete

Kontaktdaten

Objektdaten

  • Objekt ID
    Beuch2_WE14
  • Objekttypen
    Dachgeschosswohnung, Wohnung
  • Adresse
    Beuchaer Straße 2
    04318 Leipzig
  • Etage
    4
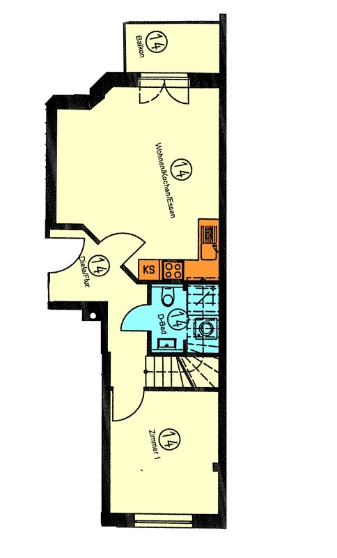
  • Wohnfläche ca.
    76,58 m²
  • Zimmer
    3
  • Badezimmer
    2
  • Balkone
    1
  • Terrassen
    1
  • Heizungsart
    Fußbodenheizung
  • Letzte Modernisierung
    2017
  • Zustand
    vollsaniert
  • Verfügbar ab
    01.07.2026
  • Kaution
    1.972,00 EUR
  • Kaltmiete
    986,00 EUR
  • Nebenkosten
    190,00 EUR
  • Warmmiete
    1.176,00 EUR (Heizkosten enthalten)

Ausstattung / Merkmale

  • Abstellraum
  • Altbau
  • Badewanne
  • Balkon
  • Dusche
  • Gäste-WC
  • Offene Küche
  • Parkettboden
  • Terrasse

Objekt­beschreibung

Beschreibung

Die Liegenschaft wurde mit sehr viel Liebe zum Detail, unter sorgfältiger Abstimmung mit dem Denkmalschutz, saniert. Hervorzuheben ist
das historische Treppenhaus mit den stilgerechten Wohnungseingangstüren und dem aufwendig gearbeiteten Treppengeländer, das auch fast komplett noch im Orignal-Zustand erhalten ist.

Ausstattung

Zur erstklassigen Ausstattung dieser Maisonette-Wohnung (DG+DS) zählen :
- Parkettfußböden in den Wohnräumen
- ein modernes Bad mit Kristallspiegel, Downlights, Badradio und Badewanne
- ein Gäste-Bad mit Dusche
- ein Abstellraum
- Fußbodenheizung in der kompletten Wohnung
- gespachtelte Wände
- eine Videowechselsprechanlage
- Balkon und Terrasse

Sonstige Informationen

Weitere interessante Angebote finden Sie unter WWW.HILDEBRAND-PARTNER.COM

DAS VORSTEHENDE ANGEBOT IST FREIBLEIBEND UND DIE ZWISCHENZEITLICHE VERMIETUNG SOWIE ÄNDERUNGEN UND IRRTÜMER BLEIBEN VORBEHALTEN! ETWAIGE EINZEICHNUNGEN IN DEN GRUNDRISSPLÄNEN (KÜCHEN, WASCHMASCHINE, MÖBEL ETC.), SIND LEDIGLICH EINRICHTUNGSVORSCHLÄGE UND SIND NICHT MIETVERTRAGSBESTANDTEIL.

Lage

Der attraktive Altbau befindet sich in einer beliebten Lage in Leipzig-Anger-Crottendorf. Das 'Alte Messegelände', das Völkerschlachtdenkmal, Freizeiteinrichtungen sowie Park- und Grünanlagen prägen die abwechslungsreiche Nachbarschaft. Der nahegelegene S-Bahnhof und die Straßenbahnhaltestelle sind in wenigen Gehminuten zu erreichen und sorgen für eine ideale Anbindung ans Stadtzentrum. Auch nur wenige Gehminuten entfernt befindet sich die weitläufige Parkanlage Stötteritzer Wäldchen mit mehreren Spielplätzen, einen Angelteich und einen Rodelberg.

Parks, Schulen, Kindergärten und die zügige Nahverkehrsanbindung macht diese Lage zu einer attraktiven Lebensumgebung.

Direktanfrage

 SSL-verschlüsselt
Immobiliendaten-Import und Darstellung für WordPress: WP-ImmoMakler®