Erstbezug : Exklusiver Neubau im Zentrum mit Balkon, Fußbodenheizung und Parkett! – Hildebrand und Partner Erstbezug : Exklusiver Neubau im Zentrum mit Balkon, Fußbodenheizung und Parkett! – Hildebrand und Partner

Erstbezug : Exklusiver Neubau im Zentrum mit Balkon, Fußbodenheizung und Parkett!

09111 Chemnitz, Wohnung zur Miete

Kontaktdaten

Objektdaten

  • Objekt ID
    Johann5a_WE30
  • Objekttyp
    Wohnung
  • Adresse
    Johann-von-Zimmermann-Str. 5a
    09111 Chemnitz
  • Etage
    3
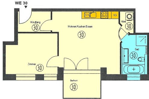
  • Wohnfläche ca.
    54,47 m²
  • Zimmer
    2
  • Badezimmer
    1
  • Balkone
    1
  • Heizungsart
    Fußbodenheizung
  • Letzte Modernisierung
    2026
  • Zustand
    neuwertig
  • Verfügbar ab
    01.04.2026
  • Kaution
    1.276,00 EUR
  • Kaltmiete
    638,00 EUR
  • Nebenkosten
    120,00 EUR
  • Warmmiete
    758,00 EUR (Heizkosten enthalten)

Ausstattung / Merkmale

  • Abstellraum
  • Badewanne
  • Balkon
  • Dusche
  • Neubau
  • Offene Küche
  • Parkettboden
  • Personenaufzug

Objekt­beschreibung

Beschreibung

Das imposante Neubauobjekt liegt im Zentrum von Chemnitz.

Durchdachte Grundrisse zeichnen die 51 attraktiven 2- bis 4-Zimmer-Wohnungen aus, die teilweise zur Straße oder zum begrünten Hof ausgerichtet sind.

Ausstattung

Zur erstklassigen Ausstattung dieser Wohnung zählen :

- Parkettfußböden in den Wohnräumen
- ein modernes Bad mit Kristallspiegel, Downlights, Badradio, Badewanne und/oder ebenerdiger Dusche
- ein Abstellraum
- Fußbodenheizung in der kompletten Wohnung
- gespachtelte Wände
- eine Videowechselsprechanlage
- einen Balkon

Sonstige Informationen

Weitere interessante Angebote finden Sie unter WWW.HILDEBRAND-PARTNER.COM

DAS VORSTEHENDE ANGEBOT IST FREIBLEIBEND UND DIE ZWISCHENZEITLICHE VERMIETUNG SOWIE ÄNDERUNGEN UND IRRTÜMER BLEIBEN VORBEHALTEN! ETWAIGE EINZEICHNUNGEN IN DEN GRUNDRISSPLÄNEN (KÜCHEN, WASCHMASCHINE, MÖBEL ETC.), SIND LEDIGLICH EINRICHTUNGSVORSCHLÄGE UND SIND NICHT MIETVERTRAGSBESTANDTEIL.

Lage

Das helle, moderne Eckgebäude befindet sich in einer ruhigen Anliegerstraße im Herzen von Chemnitz. Mit Bus und Bahn gelangt man zügig zur Zentralhaltestelle und damit zu den historischen Orten der Innenstadt. Der Chemnitzer Hauptbahnhof ist in 9 Gehminuten erreicht. Ebenfalls nur knappe 600 Meter entfernt liegt der Zentrale Omnibusbahnhof. Zahltreiche Einkaufsmöglichkeiten, Cafes, Restaurants und eine Bäckerei sind fußläufig erreichbar. Die umliegenden Grünflächen und Parks bieten abwechslungsreiche Möglichkeiten für Erholung und Aktivität im Freien. Der nahegelegene Schillerplatz, der Küchwald, der Schloßteich und die Ufer des Flusses Chemnitz sind ideale Orte für Spaziergänge, Joggen oder Picknicks.

Direktanfrage

 SSL-verschlüsselt
Immobiliendaten-Import und Darstellung für WordPress: WP-ImmoMakler®