Exklusiver Neubau in Gohlis-Mitte! 4-Zimmerwohnung mit Loggia! – Hildebrand und Partner Exklusiver Neubau in Gohlis-Mitte! 4-Zimmerwohnung mit Loggia! – Hildebrand und Partner

Exklusiver Neubau in Gohlis-Mitte! 4-Zimmerwohnung mit Loggia!

04177 Leipzig, Wohnung zur Miete

Kontaktdaten

Objektdaten

  • Objekt ID
    Blume56_WE 5
  • Objekttyp
    Wohnung
  • Adresse
    Blumenstraße 56
    04177 Leipzig
  • Etage
    1
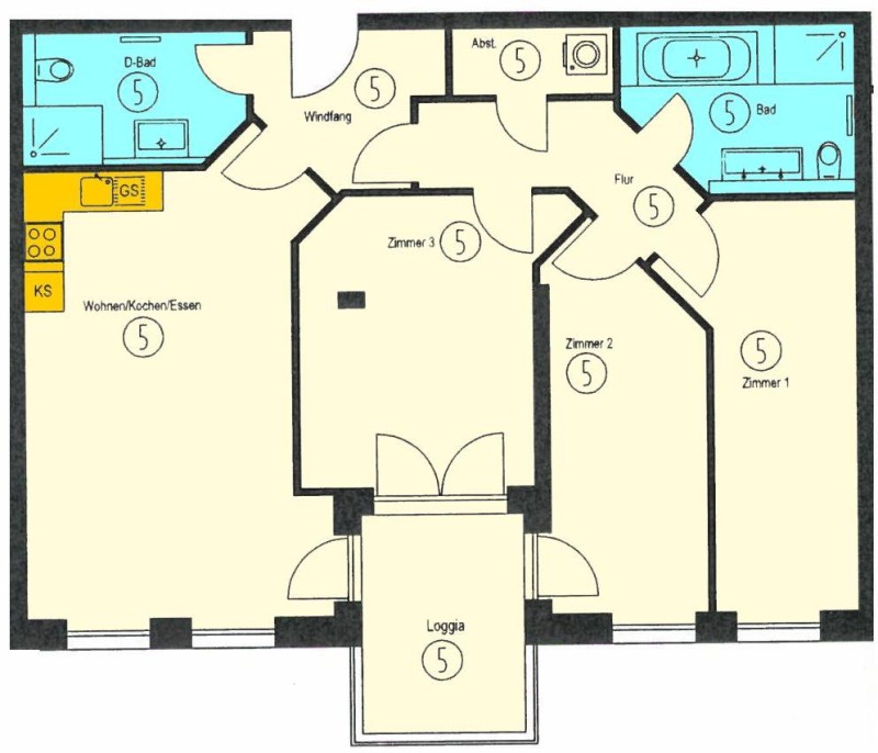
  • Wohnfläche ca.
    103,89 m²
  • Zimmer
    4
  • Badezimmer
    1
  • Balkone
    1
  • Heizungsart
    Zentralheizung, Fußbodenheizung
  • Letzte Modernisierung
    2025
  • Zustand
    neuwertig
  • Verfügbar ab
    sofort
  • Tiefgarage
    Stellplatzmiete: 85 EUR (Anzahl: 1)
  • Kaution
    3.396,00 EUR
  • Kaltmiete
    1.698,00 EUR
  • Nebenkosten
    230,00 EUR
  • Warmmiete
    1.928,00 EUR (Heizkosten enthalten)

Ausstattung / Merkmale

  • Abstellraum
  • Badewanne
  • Balkon
  • Dusche
  • Gäste-WC
  • Neubau
  • Offene Küche
  • Parkettboden
  • Personenaufzug
  • Rollladen
  • Tiefgarage

Objekt­beschreibung

Beschreibung

Exklusives Neubauprojekt mit 15 Wohneinheiten in der Blumenstraße 56 in Leipzig - Stillvolle Wohnungen in begehrter Lage im Herzen von Gohlis.

Erleben Sie modernen Wohnkomfort in einem exklusiven Neubau.

Diese hochwertig ausgestatteten Mietwohnungen verbinden zeitlose Eleganz mit zukunftsweisender Technik und bieten Ihnen ein ideales Zuhause in einer der begehrtesten Lagen der Stadt.

Hier bleiben keine Wünsche offen: Barrierefreiheit dank Aufzug, Schallschutzfenster für Ruhe inmitten der Stadt, elektrische Außenjalousien für optimalen Komfort, Tiefgaragenstellplätze und eine nachhaltige Fernwärme machen diese Mietwohnungen zu einem einzigartigen Angebot in Leipzigs Zentrum-Süd.

Ausstattung

Zur erstklassigen Ausstattung dieser Wohnung im EG zählen:

- Parkettfußböden in den Wohnräumen
- eine Loggia
- ein modernes Bad mit Kristallspiegel, Downlights, Wanne, ebenerdige Dusche, Badradio
- Gäste-Bad
- Fußbodenheizung in der kompletten Wohnung
- gespachtelte Wände
- eine Videowechselsprechanlage
- Außenjalousien

Sonstige Informationen

Weitere interessante Angebote finden Sie unter WWW.HILDEBRAND-PARTNER.COM

DAS VORSTEHENDE ANGEBOT IST FREIBLEIBEND UND DIE ZWISCHENZEITLICHE VERMIETUNG SOWIE ÄNDERUNGEN UND IRRTÜMER BLEIBEN VORBEHALTEN! ETWAIGE EINZEICHNUNGEN IN DEN GRUNDRISSPLÄNEN (KÜCHEN, WASCHMASCHINE, MÖBEL ETC.), SIND LEDIGLICH EINRICHTUNGSVORSCHLÄGE UND SIND NICHT MIETVERTRAGSBESTANDTEIL.

Lage

Der Neubau in der Blumenstraße 56 befindet sich im aufstrebenden Ortsteil Gohlis-Mitte. Das Objekt harmoniert sehr gut mit den größtenteils denkmalgeschützten Bestandsbauten in der Nachbarschaft. Besonders attraktiv für Familien und junge Menschen ist die Umgebung aufgrund der Zahl verschiedener Freizeitangebote. Außerdem befinden sich in der Nähe Ärzte, Schulen, Kindergärten, Galerien, kleinere Bars, Restaurants und zahlreiche Einkaufsmöglichkeiten sowie der Brettschneider Park und das Geyser Haus.

Direktanfrage

 SSL-verschlüsselt
Immobiliendaten-Import und Darstellung für WordPress: WP-ImmoMakler®