Wunderschöne 2-Zimmer-Wohnung im sanierten Fabrikgebäude mit Loggia – Hildebrand und Partner Wunderschöne 2-Zimmer-Wohnung im sanierten Fabrikgebäude mit Loggia – Hildebrand und Partner

Wunderschöne 2-Zimmer-Wohnung im sanierten Fabrikgebäude mit Loggia

04317 Leipzig, Wohnung zur Miete

Kontaktdaten

Objektdaten

  • Objekt ID
    EilenburgerStr.20b_WE38
  • Objekttyp
    Wohnung
  • Adresse
    Eilenburger Straße 20b
    04317 Leipzig
  • Etage
    3
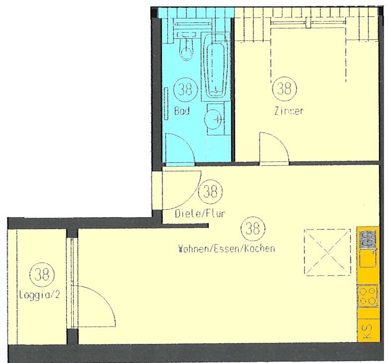
  • Wohnfläche ca.
    51,54 m²
  • Zimmer
    2
  • Badezimmer
    1
  • Balkone
    1
  • Verfügbar ab
    01.06.2026
  • Stellplatz
    Stellplatzmiete: 35 EUR (Anzahl: 1)
  • Kaution
    1.176,00 EUR
  • Kaltmiete
    588,00 EUR
  • Nebenkosten
    190,00 EUR
  • Warmmiete
    778,00 EUR (Heizkosten enthalten)

Ausstattung / Merkmale

  • Altbau
  • Außenstellplatz
  • Badewanne
  • Balkon
  • Dusche
  • Offene Küche
  • Parkettboden
  • Tageslichtbad

Objekt­beschreibung

Beschreibung

Das imposante Gebäude wurde um die Jahrhundertwende als Fabrikations- und Verwaltungsgebäude errichtet.
Die Sanierung erfolgte mit sehr viel Liebe zum Detail in enger Zusammenarbeit mit der Denkmalschutzbehörde.

Ausstattung

Die Wohnung verfügt über ein Bad mit Fenster, Wanne und Dusche. Parkettfußböden befinden sich in allen Wohnräumen und im Flurbereich, sowie eine schöne Loggiamit Blick in den ruhigen Innenhof. Optional wäre es möglich einen Stellplatz zu mieten.

Sonstige Informationen

Weitere interessante Angebote finden Sie unter WWW.HILDEBRAND-PARTNER.COM

DAS VORSTEHENDE ANGEBOT IST FREIBLEIBEND UND DIE ZWISCHENZEITLICHE VERMIETUNG SOWIE ÄNDERUNGEN UND IRRTÜMER BLEIBEN VORBEHALTEN! ETWAIGE EINZEICHNUNGEN IN DEN GRUNDRISSPLÄNEN (KÜCHEN, WASCHMASCHINE, MÖBEL ETC.), SIND LEDIGLICH EINRICHTUNGSVORSCHLÄGE UND SIND NICHT MIETVERTRAGSBESTANDTEIL.

Es handelt sich um einen denkmalgeschützten Altbau, ein Energieausweis ist nicht erforderlich !

Lage

Das zentrumsnahe Wohngebiet Reudnitz, angrenzend an das Stadtzentrum Leipzigs, verfügt über eine wunderschöne Altbausubstanz. Eine Vielzahl von kleineren Handwerksbetrieben, Druckereien, sowie die Brauerei Reudnitz konnten sich hier etablieren. Zur Freizeitgestaltung lädt der Lene-Voigt-Park und der Friedenspark ein. Für Studenten besticht die Lage durch ihre Nähe zu den Universitäts- und Tierkliniken.

Direktanfrage

 SSL-verschlüsselt
Immobiliendaten-Import und Darstellung für WordPress: WP-ImmoMakler®