Sanierte 3-Zimmer-Wohnung in Zentrum-West mit Parkettfußboden und Balkon ! – Hildebrand und Partner Sanierte 3-Zimmer-Wohnung in Zentrum-West mit Parkettfußboden und Balkon ! – Hildebrand und Partner

Sanierte 3-Zimmer-Wohnung in Zentrum-West mit Parkettfußboden und Balkon !

04109 Leipzig, Wohnung zur Miete

Kontaktdaten

Objektdaten

  • Objekt ID
    Gottsched 4_WE 11
  • Objekttyp
    Wohnung
  • Adresse
    Gottschedstraße 4
    04109 Leipzig
  • Etage
    2
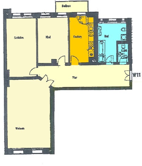
  • Wohnfläche ca.
    124,80 m²
  • Zimmer
    3
  • Badezimmer
    1
  • Separate WC
    1
  • Balkone
    1
  • Heizungsart
    Zentralheizung
  • Zustand
    vollsaniert
  • Verfügbar ab
    sofort
  • Kaution
    2.696,00 EUR
  • Kaltmiete
    1.348,00 EUR
  • Nebenkosten
    400,00 EUR
  • Warmmiete
    1.748,00 EUR (Heizkosten enthalten)

Ausstattung / Merkmale

  • Altbau
  • Badewanne
  • Balkon
  • Dusche
  • Gäste-WC
  • Parkettboden
  • Personenaufzug
  • Separates WC

Objekt­beschreibung

Beschreibung

Traumhaft sanierte Wohnung in Zentrum West!

Ausstattung

Die Wohnung befindet sich in der beliebten Gottschedstraße in Leipzigs Innenstadt und verfügt über Parkettboden, Balkon, ein Gäste-WC und ein Tageslichtbad mit Wanne und Dusche. Der herrliche freie Blick und die zentrale Lage zeichnen die Wohnung aus.

Sonstige Informationen

Ein Energieausweis ist nicht erforderlich. Die Immobilie steht unter Denkmalschutz.
Weitere interessante Angebote finden Sie unter WWW.HILDEBRAND-PARTNER.COM
DAS VORSTEHENDE ANGEBOT IST FREIBLEIBEND UND DIE ZWISCHENZEITLICHE VERMIETUNG SOWIE ÄNDERUNGEN UND IRRTÜMER BLEIBEN VORBEHALTEN! ETWAIGE EINZEICHNUNGEN IN DEN GRUNDRISSPLÄNEN (KÜCHEN, WASCHMASCHINE, MÖBEL ETC.), SIND LEDIGLICH EINRICHTUNGSVORSCHLÄGE UND SIND NICHT MIETVERTRAGSBESTANDTEIL.

Anmerkung: Die von uns gemachten Angaben haben wir nach bestem Wissen und Gewissen nach Informationen des Vermieters/Verkäufers und den uns übergebenen Informationen zusammengestellt. Eine Gewähr für diese Angaben können wir nicht übernehmen. Wichtige Zahlen und Informationen sind am Objekt zu überprüfen. Zwischenvermietung/Verkauf bleibt vorbehalten.

Lage

Dieser sanierte Altbau befindet sich in Zentrum-West angrenzend an dasWaldstraßenviertel. Das Waldstraßenviertel gilt als eines der größten geschlossen erhaltenen Gründerzeitviertel in Europa und genießt als Flächenarchitekturdenkmal besonderen Schutz. Es ist eine der besten Wohnlagen von Leipzig und zeichnet sich durch seine unmittelbare Nähe zum Rosental, ein 118 Hektar großer, parkartiger Teil des nördlichen Auenwaldes, aus. In nur wenigen Gehminuten erreicht man die Innenstadt, Geschäfte des täglichen Bedarfs und zahlreiche gastronomische Einrichtungen.

Direktanfrage

 SSL-verschlüsselt
Immobiliendaten-Import und Darstellung für WordPress: WP-ImmoMakler®